BLOOM BY JULIE FAVRE - ARCHITECTE D'INTÉRIEUR



BLOOM BY JULIE FAVRE - ARCHITECTE D'INTÉRIEUR
PROJET SOUS LES PINS
PROJET SOUS LES PINS
2025
2025
BORDEAUX, GIRONDE
BORDEAUX, GIRONDE
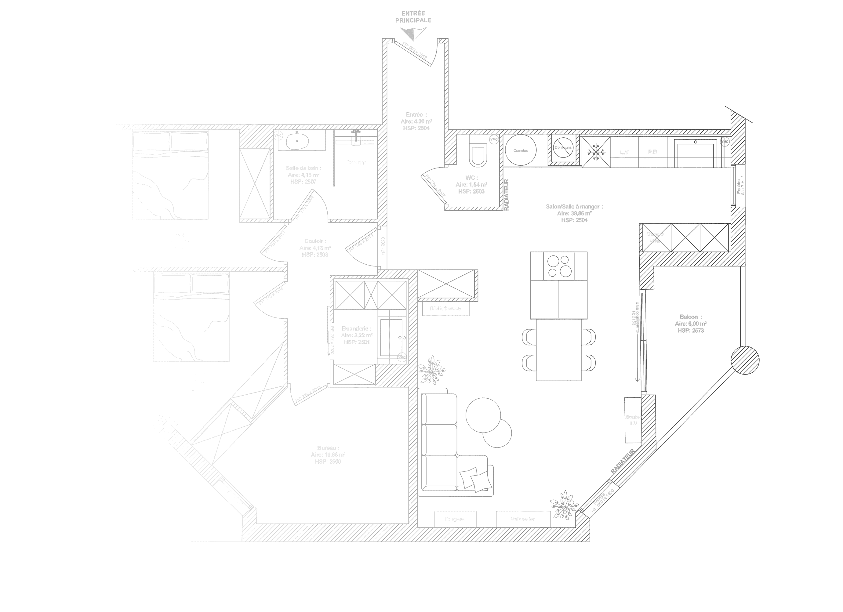
Cet appartement bordelais, situé à proximité des Pins à été conçu pour révéler un espace lumineux, fluide et chaleureux.
L'intention était d'ouvrir les volumes afin d'améliorer la circulation tout en valorisant la lumière naturelle. Les tonalités sont ici inspirées par la nature qui l'entoure : des tons beiges évoquent le sable des dunes proches, associées à la chaleur du bois apporte confort et douceur. Pour dynamiser l'espace et lui donner du caractère, des touches de bordeaux et un marbre veiné viennent souligner l'intérieur, créant un contraste élégant avec une palette naturelle.
Cet appartement bordelais, situé à proximité des Pins à été conçu pour révéler un espace lumineux, fluide et chaleureux.
L'intention était d'ouvrir les volumes afin d'améliorer la circulation tout en valorisant la lumière naturelle. Les tonalités sont ici inspirées par la nature qui l'entoure : des tons beiges évoquent le sable des dunes proches, associées à la chaleur du bois apporte confort et douceur. Pour dynamiser l'espace et lui donner du caractère, des touches de bordeaux et un marbre veiné viennent souligner l'intérieur, créant un contraste élégant avec une palette naturelle.
Une conception qui mêle élégance sobre et naturalité.
Une conception qui mêle élégance sobre et naturalité.



© 2026 Bloom by Julie Favre — Architecte d’intérieur | Savoie — Tous droits réservés.
© 2026 Bloom by Julie Favre Architecte d’intérieur | Savoie
Tous droits réservés.
© 2026 Bloom by Julie Favre — Architecte d’intérieur | Savoie — Tous droits réservés.



