BLOOM BY JULIE FAVRE - ARCHITECTE D'INTÉRIEUR



BLOOM BY JULIE FAVRE - ARCHITECTE D'INTÉRIEUR
PROJET OLIVETTE
PROJET OLIVETTE
2025
2025
EPINAY-SUR-ORGE, ESSONNE
EPINAY-SUR-ORGE, ESSONNE
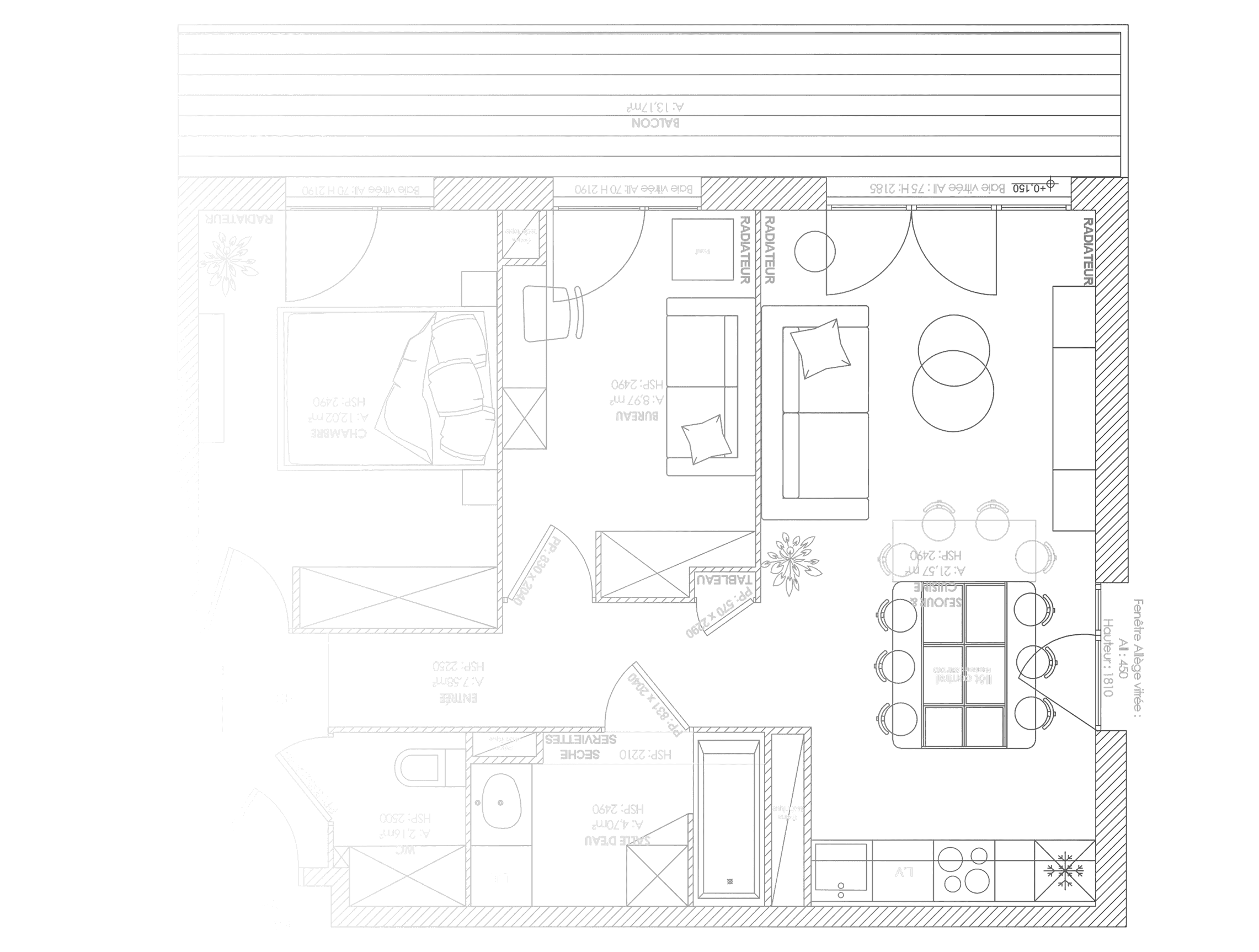
Cet appartement acheté sur plan à été intégralement pensé pour offrir à mes clients un espace 100% personnalisé , dans lequel ils puissent s'approprier chaque pièce et y inscrire leur marques style personnalités.
Tous les espaces créent une harmonie globale en conservant leur forte identité.
Dans la pièce de vie, le vert olive se marie avec une tapisserie graphique et à des touches dorées, tandis que le bois et le mobilier apportent chaleur et confort. La chambre propose un univers complètement différent : un bleu roi profond, des moulures délicates, un papier peint toile de Jouy et des lignes très contemporaines créer un équilibre entre tradition et modernité.
Cet appartement acheté sur plan à été intégralement pensé pour offrir à mes clients un espace 100% personnalisé , dans lequel ils puissent s'approprier chaque pièce et y inscrire leur marques style personnalités.
Tous les espaces créent une harmonie globale en conservant leur forte identité.
Dans la pièce de vie, le vert olive se marie avec une tapisserie graphique et à des touches dorées, tandis que le bois et le mobilier apportent chaleur et confort. La chambre propose un univers complètement différent : un bleu roi profond, des moulures délicates, un papier peint toile de Jouy et des lignes très contemporaines créer un équilibre entre tradition et modernité.
Un projet comme une expression d'identité.
Un projet comme une expression d'identité.



© 2026 Bloom by Julie Favre — Architecte d’intérieur | Savoie — Tous droits réservés.
© 2026 Bloom by Julie Favre Architecte d’intérieur | Savoie
Tous droits réservés.
© 2026 Bloom by Julie Favre — Architecte d’intérieur | Savoie — Tous droits réservés.






